INICIO  /SALA DE NOTICIAS  / CLESCRANE cierra con éxito un contrato para una solución de actualización de polipasto eléctrico personalizada para una fábrica de acero en Argentina

CLESCRANE cierra con éxito un contrato para una solución de actualización de polipasto eléctrico personalizada para una fábrica de acero en Argentina

Noticias de Compañía - Feb 17, 2026
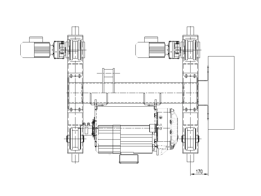
Una fábrica de acero en Argentina, debido a las frecuentes fallas y la baja eficiencia de su puente grúa MDS existente, decidió reemplazar el polipasto eléctrico. CLESCRANE le proporcionó un polipasto de cable de acero de doble viga de 5 toneladas a medida, resolviendo eficazmente los problemas de alta tasa de fallos y baja eficiencia.

Teniendo en cuenta las limitaciones de espacio en la planta, el equipo fue especialmente diseñado con un sistema de accionamiento del carro en la misma dirección, y la caja eléctrica se ubicó a 170 mm del extremo del polipasto, cumpliendo perfectamente con los requisitos del cliente.
¿Tienes un proyecto?
Nos encantaría ayudarte.
Cuestionario de encuesta en línea

CONTÁCTENOS

Producto:
*
País:
Nombre:
*
Email:
*
Whatsapp:
TEL:
Por favor llámame de nuevo
Compañía:
*
Título profesional:
*
Ubicación del proyecto:
Más detalles:

SOLICITUD DE ACCESO AL SOFTWARE

Nombre:
*
Email:
*
País:
Compañía:
*
Título profesional:
TEL:
Por favor llámame de nuevo